Evesham House, Reading, RG30
£225,000
Summary
This property comes to market with no onward chain in a very popular location, just to the West of Reading town centre.Full Description
This property comes to market with no onward chain in a very popular location, just to the West of Reading town centre.
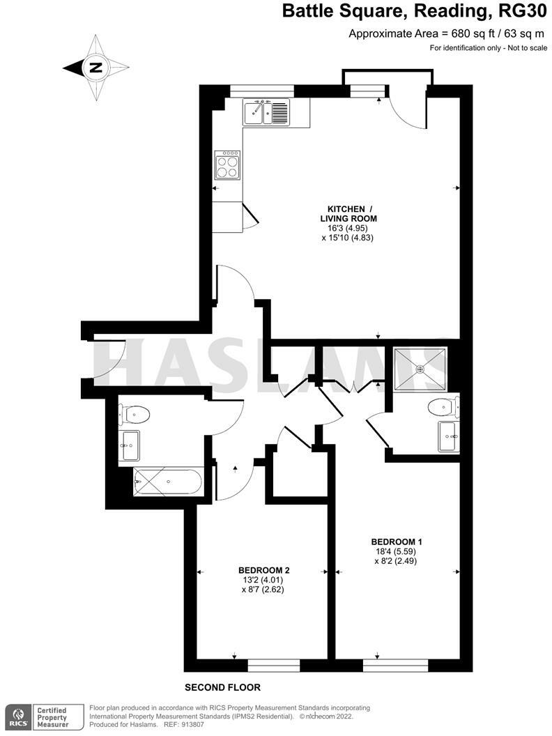
Offered to the market is this well maintained apartment boasting two bedrooms, two bathrooms, and an enviable location within a sought-after development. With two Juliette balconies, this apartment is bathed in natural light, and offers the best view of the development
Ideal for commuters Reading West train station is approximately a ten minute walk, while the town centre and mainline station is just a 25-minute walk away approximately.
The accommodation comprises of an entrance hallway, two bedrooms, two bathrooms and an open-plan kitchen/lounge/diner, with a Juliet balcony, providing a versatile space for relaxation and entertaining
There is underground parking and access to a large private communal garden.
Service charge £200 per month including ground rent,
111 years left on the lease
Viewing/Disclaimer
Please contact us on 01189871066 if you wish to arrange a viewing appointment for this property or require further information.Energy Performance Certificate
Click here to view the Energy Efficiency Rating and Environmental Impact Rating for this property.Gooding & Co - RG1 endeavour to maintain accurate depictions of properties in Virtual Tours, Floor Plans and descriptions, however, these are intended only as a guide and purchasers must satisfy themselves by personal inspection.

